
Renderings of Proposed Remodel
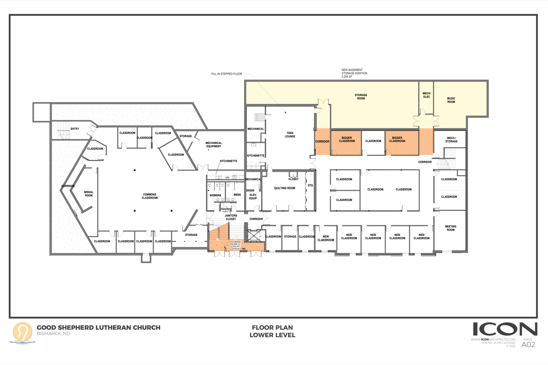
In February 2021 the LRPT issued a Request for Proposals (RFP) seeking architectural and engineering design services for the design of a building addition which will provide a new office suite and flexible narthex and meeting space for our membership and community. Proposals were requested from Architects licensed by the State of North Dakota with experience in the design of similar projects. In the Summer of 2021, Church Council approved the proposal from ICON Architectural Group.

